Forum  M’enregistrer
* *

Nous sommes le Mer 19 Nov 2025, 15:24:55

Heures au format UTC + 1 heure




Poster un nouveau sujet RĂ©pondre au sujet  [ 40 messages ]  Aller Ă  la page PrĂ©cĂ©dente  1, 2
Auteur Message
 Sujet du message: Re: Coupure Moteur Intempestive.
MessagePostĂ©: Lun 21 Sep 2009, 8:33:09 
Hors ligne
Modérateur
Modérateur
Avatar de l’utilisateur

Inscription: Dim 15 Juil 2007, 23:00:00
Messages: 1256
Localisation: banlieue Paris Est
Roule en: 605 TCT 2l
Bonjour.
1) Petit tour d'horizon sur ton compartiment moteur :

Moteur 605 PRV170 François24.jpg
Moteur 605 PRV170 François24.jpg [ 249.34 Kio | Vu 6527 fois ]

Légende :
1 = Faisceaux Calculateurs Suspension et ABS
2 = Faisceau Calculateur Fenix 3 Gestion Moteur
3 = Retour d'essence vers réservoir
4 = Arrivée d'essence sous pression 3,5 < P < 4 bars
5 = Compresseur de climatisation
6 = Prise de Masses du Calculateur Fenix 3
7 = Pompe d'assistance de direction
8 = Commande d'accélérateur
9 = Cloche de Servo-Frein (Hydrovac)
10 = Maître-Cylindre de freinage
11 = Relais double 1304
12 = Module d'allumage et bobine Haute Tension
13 = Pressostat de climatisation
14 = Compartiment des fusibles "moteur"
15 = Compartiment des relais du Groupe MotoVentilateurs (GMV)
16 = Distributeur rotatif d'allumage
17 = Bougie du cylindre N° 1
18 = Injecteur du cylindre N° 1
19 = Connecteur du détecteur de cliquetis du groupe 1-2-3
20 = Amortisseur de pulsations (régularise le débit d'essence pour l'injection)
21 = Régulateur de pression d'essence (3 bars, descend à 2,4 bars papillon des gaz fermé)
22 = Rampe d'injection du groupe 1-2-3

2) Procédure de diagnostic :
- Faire monter le moteur en température jusqu'à ce qu'il cale. Répéter l'opération si besoin en vue de se trouver dans le cas où il ne redémarre pas.
- Mettre le contact, le code, actionner le démarreur pendant 1 à 2 secondes et mesurer la résistance ohmique entre les cosses de mise à la masse du calculateur (repère 6 sur la photo) et la borne (-) de la batterie. On doit rouver moins de 1 ohm (tenir compte de la résistance des cordons du multimètre). Couper le contact.
- Déconnecter le cordon sur la bougie N° 1 et y raccorder une bougie volante dont on plaquera la partie métallique extérieur contre la masse moteur.
- Déposer la rampe d'injection du groupe 1-2-3 avec ses injecteurs sans la déconnecter : extraire les injecteurs de la pipe d'admission en tirant, la résistance n'est due qu'aux joints toriques.
- Poser un extincteur à proximité en raison du risque d'inflammation de l'essence lors de la manipulation.
- Mettre le contact, le code, actionner le démarreur pendant 1 à 2 secondes et observer :
a) Il y a étincelle à la bougie et les injecteurs "crachent" de l'essence : le moteur devrait démarrer.
b) Il n'y a pas d'étincelle à la bougie et les injecteurs ne "crachent" pas : il y a vraisemblablement un problème de retour de masse au calculateur (les connexions de masse du calculateur ne sont pas bonnes).
c) Il y a étincelle à la bougie et les injecteurs ne "crachent" pas : répéter l'opération en déconnectant la sonde lambda. Si le constat est identique, il y a vraisemblablement un problème de retour de masse au calculateur. Reconnecter la sonde lambda.
d) Il n'y a pas d'étincelle à la bougie et les injecteurs "crachent" de l'essence : le problème est spécifique à l'allumage.

3) Opérations :
Déconnecter le calculateur et asperger les contacts à l'aide d'une bombe de fluide à contacts. Laisser sécher et reconnecter.
Déposer le capteur de Régime / Point Mort Haut (PMH) et le nettoyer. Relever sa résistance ohmique à froid et à chaud(entre bornes 1 et 2) et le reposer. Si la résistance ohmique à chaud est trop élevée, il y a risque de refus de fonctionnement du moteur.
Nettoyer la prise de masse (repère 6 sur la photo) : déposer la vis, brosser les cosses et reposer.
Recommencer les essais.

_________________
605 SLI - 2L 8 soupapes - Phase 1 (6BRFZ8) 18.06.1993 215 000 km rouge alhambra modèle de base.
605 SRTI - 2L Turbo - Phase 2 (6BRGX2) 26.09.1996 301 000 km vert sherwood clim semi-auto cuir ADC radio 6030. Mod exp Italie base Suisse (Equivalent EXECUTIVE)


Haut
 Profil  
 

 Annonces du forum Peugeot 605

 Sujet du message: Re: Coupure Moteur Intempestive.
MessagePostĂ©: Lun 21 Sep 2009, 16:11:29 
Hors ligne
Nouveau
Nouveau
Avatar de l’utilisateur

Inscription: Mar 07 Oct 2008, 23:00:00
Messages: 24
Localisation: BERGERAC
Roule en: 605 PRV ph2
Bonjour Alain, plus explicite ça sera difficile de trouver :-D . Merci beaucoup.
J'ai donc suivi Ă  la lettre tes explications.

Procédures de diagnostic
-Je n'ai pas pu monter le moteur en température car après un bref démarrage de 3 secondes plus rien. Impossible de le mettre en route. Le but étant de se trouver dans le cas ou il ne démarre pas on y était.
-
Citation:
Mettre le contact, le code, actionner le démarreur pendant 1 à 2 secondes et mesurer la résistance ohmique entre les cosses de mise à la masse du calculateur (repère 6 sur la photo) et la borne (-) de la batterie. On doit rouver moins de 1 ohm (tenir compte de la résistance des cordons du multimètre). Couper le contact.

La mesure ici donne 732 ohm
-
Citation:
Déposer la rampe d'injection du groupe 1-2-3 avec ses injecteurs sans la déconnecter...

Le résultat est ici le d) pas d'étincelle à la bougie et les injecteurs crachent de l'essence, donc problème spécifique d'allumage.

J'ai malgré tout enlevé les calculateurs de leur boite plastique, nettoyer la dite boite des résidus qui s'y trouvaient ce qui à permis de libérer deux petits trous au fond (certainement pour laisser sortir l'eau au cas ou). En sortant cette boite je me suis qu'il y avait deux endroits sur l'interieur d'aile ou il y avait des fils de masses dont deux qui allaient sur une des prises du calculateurs. Donc Nettoyage :smile:

Opérations
Citation:
Déconnecter le calculateur et esperger les contacts à l'aide d'une bombe de fluide à contacts. Laisser sécher et reconnecter.
C'est fait sans le fluide, je n'en avais pas sous la main aujourd'hui donc demain quand je pourrais avoir la voiture de la voisine pour me déplacer :smile: .
Citation:
Déposer le capteur de Régime / Point Mort Haut (PMH) et le nettoyer. Relever sa résistance ohmique à froid et à chaud(entre bornes 1 et 2) et le reposer. Si la résistance ohmique à chaud est trop élevée, il y a risque de refus de fonctionnement du moteur.
C'est fait. Entre la broche 1 et deux la mesure est de 370ohms. Je n'ai pu faire ce test qu'a froid.
En démontant le capteur PMH je me suis rendu compte que la prise dans la quelle il venait est cassée. Je joins une photo. C'est bizarre car la cassure à l'air récente.
Commentaire: Fiche cassée
IMAGE_178.jpg
IMAGE_178.jpg [ 113.66 Kio | Vu 6654 fois ]

Je pose la question mais je pense que j'ai la réponse. Mon problème pourrait il venir de là.
Si oui comment changer cette fiche car elle fait parti d'un faisceau, et je suppose que chez peugeot on a droit au faisceau complet :sad:
Les fils n'ont pas l'air coupés à part peut être quelques brins sur la tresse à l'intérieur mais vu la grosse isolation qu'il y a autour j'ai des doutes.
Citation:
Nettoyer la prise de masse (repère 6 sur la photo) : déposer la vis, brosser les cosses et reposer.
Fait y compris les deux autres masses sur l'intérieur de l'aile.
J'ai donc arrêté là car tant que ce problème de fiche ne sera pas régler je suis coincé.

_________________
François - V6 PRV 12s B.V.A. de 1996 -SV Bleue de Rhodes - 318000 kms au compteur


Haut
 Profil  
 
 Sujet du message: Re: Coupure Moteur Intempestive.
MessagePostĂ©: Lun 21 Sep 2009, 16:49:44 
Hors ligne
Modérateur
Modérateur
Avatar de l’utilisateur

Inscription: Dim 15 Juil 2007, 23:00:00
Messages: 1256
Localisation: banlieue Paris Est
Roule en: 605 TCT 2l
Francois24 a écrit:
... résistance ohmique entre les cosses de mise à la masse du calculateur (repère 6 sur la photo) et la borne (-) de la batterie. On doit trouver moins de 1 ohm (tenir compte de la résistance des cordons du multimètre). Couper le contact.

La mesure ici donne 732 ohm Refaire cette mesure après avoir nettoyé les cosses et bien resserré la vis.

Francois24 a écrit:
... En démontant le capteur PMH je me suis rendu compte que la prise dans la quelle il venait est cassée. Je joins une photo. C'est bizarre car la cassure à l'air récente. Je pose la question mais je pense que j'ai la réponse. Mon problème pourrait il venir de là ?
Reconnecter le capteur PMH 1313 et mesurer sa résistance entre les bornes 11 et 28 du connecteur fiche désolidarisé du Fenix 3 : on doit trouver la même valeur de 370 ohms, à un ohm près.
Maintenir la mesure en remuant la connection du capteur de PMH : si la valeur mesurée ne varie pas, la cassure n'a pas de conséquence dommageable.


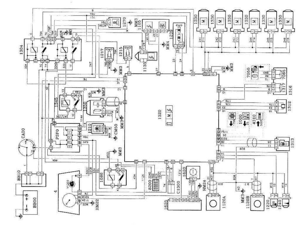
Cliquer sur l'image pour une meilleure lisibilité

Injection ZPJ 01.jpg
Injection ZPJ 01.jpg [ 128.7 Kio | Vu 6533 fois ]

_________________
605 SLI - 2L 8 soupapes - Phase 1 (6BRFZ8) 18.06.1993 215 000 km rouge alhambra modèle de base.
605 SRTI - 2L Turbo - Phase 2 (6BRGX2) 26.09.1996 301 000 km vert sherwood clim semi-auto cuir ADC radio 6030. Mod exp Italie base Suisse (Equivalent EXECUTIVE)


Haut
 Profil  
 
 Sujet du message: Re: Coupure Moteur Intempestive.
MessagePostĂ©: Lun 21 Sep 2009, 18:39:20 
Hors ligne
Nouveau
Nouveau
Avatar de l’utilisateur

Inscription: Mar 07 Oct 2008, 23:00:00
Messages: 24
Localisation: BERGERAC
Roule en: 605 PRV ph2
Citation:
Reconnecter le capteur PMH 1313 et mesurer sa résistance entre les bornes 11 et 28 du connecteur fiche désolidarisé du Fenix 3


J'ai bien reperer sur ton schema le 1313 et les bornes 11 et 28.
mais comment retrouver les bornes 11 et 28 sur le connecteur? Dois je démonter le calculateur?
Je préfère demander avant de faire des bêtises lol

_________________
François - V6 PRV 12s B.V.A. de 1996 -SV Bleue de Rhodes - 318000 kms au compteur


Haut
 Profil  
 
 Sujet du message: Re: Coupure Moteur Intempestive.
MessagePostĂ©: Lun 21 Sep 2009, 19:17:13 
Hors ligne
Modérateur
Modérateur
Avatar de l’utilisateur

Inscription: Dim 15 Juil 2007, 23:00:00
Messages: 1256
Localisation: banlieue Paris Est
Roule en: 605 TCT 2l
Il faut déconnecter le gros connecteur du Fenix 3 et le regarder côté connexions : elles sont numérotées.

_________________
605 SLI - 2L 8 soupapes - Phase 1 (6BRFZ8) 18.06.1993 215 000 km rouge alhambra modèle de base.
605 SRTI - 2L Turbo - Phase 2 (6BRGX2) 26.09.1996 301 000 km vert sherwood clim semi-auto cuir ADC radio 6030. Mod exp Italie base Suisse (Equivalent EXECUTIVE)


Haut
 Profil  
 
 Sujet du message: Re: Coupure Moteur Intempestive.
MessagePostĂ©: Mer 23 Sep 2009, 15:34:02 
Hors ligne
Nouveau
Nouveau
Avatar de l’utilisateur

Inscription: Mar 07 Oct 2008, 23:00:00
Messages: 24
Localisation: BERGERAC
Roule en: 605 PRV ph2
Merci bien Alain,
C'est bien celui que j'ai défait. Je n'ai rien vu. Je me pencherais plus dessus demain avec une loupe car à mon age mes yeux commencent à ne plus être aussi vif de près :mdrr:

-- Edit du 23 Sep 2009, 16:34 --

Bonjour Alain, Bonjour Ă  tous,

Désolé je n'ai pas pu regarder hier mais c'est fait aujourd'hui.
Je n'ai pas de numérotation ni sur le connecteur ni sur le boitier. Mais avec le multimêtre, en mettant une fiche sur le n°1 du fil en question (celui avec la prise cassée) et en cherchant sur le connecteur, puis pareil pour le n°2, je suis arrivé à ne trouver que de deux endroits (un pour la fiche 1 et un pour la fiche 2) ou mon multimètre me donnait une valeure. Je suppose donc que ce sont de ce fait les broches 11 et 28 que je cherchais. J'ai donc fait le test sur 11/28 et la valeur est de 366 ohms pour 370 relevé précédemment sur le capteur. Mais elle ne varie pas en bougeant le fil de la fiche cassée. Je suppose donc que la cassure n'a pas d'incidence.
Maintenant la valeur n'étant pas la même est ce que ça peut avoir une incidence sur le fonctionnement?

_________________
François - V6 PRV 12s B.V.A. de 1996 -SV Bleue de Rhodes - 318000 kms au compteur


Haut
 Profil  
 
 Sujet du message: Re: Coupure Moteur Intempestive.
MessagePostĂ©: Mer 23 Sep 2009, 18:51:25 
Hors ligne
Modérateur
Modérateur
Avatar de l’utilisateur

Inscription: Dim 15 Juil 2007, 23:00:00
Messages: 1256
Localisation: banlieue Paris Est
Roule en: 605 TCT 2l
Non, pas d'incidence. Cette valeur est variable avec la qualité des connexions, comme tout résultat de mesurage électrique.
Le plus inquiétant, c'est la résistance entre les cosses de mise à la masse (repère 6) et le (-) batterie. Vérifie que la vis qui fixe les cosses est bien serrée sur la tubulure d'admission et que la connexion sur le (-) batterie est en bon état.

-- Edit du Mer 23 Sep 2009, 20:51:25 --

Francois24 a écrit:
... Je suppose donc que ce sont de ce fait les broches 11 et 28 que je cherchais ...

Cela t'auras donc permis de repérer le numérotage du connecteur que tu auras avantageusement reporté sur une feuille de papier. Tu pourras ainsi à force te constituer un dossier technique - pas vraiment inutile - sur ce genre de véhicule.

_________________
605 SLI - 2L 8 soupapes - Phase 1 (6BRFZ8) 18.06.1993 215 000 km rouge alhambra modèle de base.
605 SRTI - 2L Turbo - Phase 2 (6BRGX2) 26.09.1996 301 000 km vert sherwood clim semi-auto cuir ADC radio 6030. Mod exp Italie base Suisse (Equivalent EXECUTIVE)


Haut
 Profil  
 
 Sujet du message: Re: Coupure moteur intempestive sur V6 PRV 12s
MessagePostĂ©: Mar 08 DĂ©c 2009, 18:25:31 
Hors ligne
Nouveau
Nouveau
Avatar de l’utilisateur

Inscription: Mar 07 Oct 2008, 23:00:00
Messages: 24
Localisation: BERGERAC
Roule en: 605 PRV ph2
Bonjour Ă  tous,
Cela faisait un petit moment que je n'étais pas passé par ce forum. Non pas parce que mon problème était résolu, mais tout simplement par manque de moyens (financiers)pour le résoudre :sad: .
Je viens de refaire le tour du forum à la recherche d'éléments me permettant de faire fonctionner cette voiture correctement sans avoir peur de rester au milieu d'un carrefour ou sur un bord de route.

SymptĂ´mes au moments ou j'ai ouvert ce topic :
Démarrage a froid aléatoire voir impossible. Puis passé 70° tout se passait bien.
J'ai appliqué tous les conseils d'alc que je remercie encore une fois ici.

Les symptômes se sont alors déplacés : Démarrage a froid plus facile, mais véhicule qui cale à chaud 90° et impossible de repartir. La galère.

Petit récapitulatif de ce qui a été changé dans les deux mois précédents :
- TĂŞte Allumeur et son doigt.
- Bougies
- Relais double
- Bobine
- Capteur PMH aujourd'hui.
Toutes ces pièces sont neuves. Il n'y a que le module d'allumage que je n'ai pas pu changer car celui que j'avais commandé (Valéo disponible sur Oscaro) en même temps que la bobine ne correspond pas. En effet j'ai un allumage Bosch, à priori, et mon module est un MT03.

Mes symptomes aujourd'hui après essais :
Démarrage à froid impeccable. Plus de coupure pendant la chauffe ni à 90°.
Un essai sur route de 10 kms n'a pas donné de signes particulier.
En ville par contre c'est pas top. Elle cale à l'arrêt dans une file . Elle redémarre aussitôt (1er coup de démarreur), je ne suis donc pas coincé. Lorsqu'elle fait signe de caler en roulant en ville (petite vitesse) on a l'impression qu'il y du bruit à l'échappement comme si elle faisait de l'auto allumage, je me range sur le coté et le fait de se mettre à l'arrêt le moteur repart sans caler. Si elle cale , je peux la redémarrer sans problème.
Il y a donc un mieux mais ce n'est pas encore ça.

J'ai l'intention de changer le module d'allumage mais est ce que ca peut venir de lui (c'est la seule pièces qui reste non changé depuis l'apparition de ses problèmes).
- Se pourrait il qu'une fois chaud il ce module coupe de temps en temps?
- Ce module peut il provoquer ces bruit à l'échappement comme si j'avais trop ou pas assez d'avance à l'allumage?

Véhicule à l'arrêt si je donne un grand coup d'accélérateur, le régime retombe presque à caler et se remet ensuite au ralenti (lorsque je faisais ca avant d'avoir changé le capteur il calait une fois sur deux).
Est ce que cela vient du même problème ou d'un deuxième?

Ces deux soucis ont il un rapport entre eux?

Merci de toutes les infos que vous pourriez me donner.

_________________
François - V6 PRV 12s B.V.A. de 1996 -SV Bleue de Rhodes - 318000 kms au compteur


Haut
 Profil  
 
 Sujet du message: Re: Coupure moteur intempestive sur V6 PRV 12s
MessagePostĂ©: Mar 08 DĂ©c 2009, 23:27:03 
Hors ligne
Modérateur
Modérateur
Avatar de l’utilisateur

Inscription: Dim 15 Juil 2007, 23:00:00
Messages: 1256
Localisation: banlieue Paris Est
Roule en: 605 TCT 2l
Bonsoir. Le module d'allumage peut dérailler, surtout à chaud où les défauts et dérives seront amplifiés. L'avance est gérée par le calculateur Fenix 3, c'est la raison pour laquelle le doigt d'allumage possède un secteur large (au moins 15 degrés d'angle correspondant à 30 degrés de rotation de vilebrequin afin de pouvoir transmettre la haute tension sur une plage suffisante précédant le Point Mort Haut (PMH). Le module reçoit l'ordre du Fenix 3 et coupe brusquement l'alimentation du primaire de la bobine pour produire la haute tension au secondaire. Cette haute tension s'écoule à la masse par l'intermédiaire du doigt rotatif (rotor) du plot du cylindre en compression et de la bougie d'allumage. Si le module est malade, il peut y avoir absence, retard, éventuellement double allumage.

_________________
605 SLI - 2L 8 soupapes - Phase 1 (6BRFZ8) 18.06.1993 215 000 km rouge alhambra modèle de base.
605 SRTI - 2L Turbo - Phase 2 (6BRGX2) 26.09.1996 301 000 km vert sherwood clim semi-auto cuir ADC radio 6030. Mod exp Italie base Suisse (Equivalent EXECUTIVE)


Haut
 Profil  
 
 Sujet du message: Re: Coupure moteur intempestive sur V6 PRV 12s
MessagePostĂ©: Mer 09 DĂ©c 2009, 12:12:06 
Hors ligne
Administrateur
Administrateur
Avatar de l’utilisateur

Inscription: Dim 25 Fév 2007, 0:00:00
Messages: 5800
Localisation: Ardèche (07)
Roule en: Autre
Pas de chance, c'était deux pannes en une :cry:
Concernant le capteur PMH c'est déjà une bonne chose :smile: Tiens nous au courant pour le module d'allumage, en espérant que ce soit ça !

Les bruits à l'échappement (comme des explosions :dents: ), j'en avais sur mon coupé 406 V6 ES9 lorsque la rampe de bobines étaient HS, donc ça venait bien de l'allumage et vu que tu as déjà remplacé le delco etc., effectivement il ne te reste que le module d'allumage, mais aussi le faisceau HT ?

Sur ma 605 PRV 12s, j'avais dû changer le faisceau HT à l'achat (160000 km) à cause de ratés moteur (mais pas de calage !), ce remplacement ayant bel et bien résolu le problème.

_________________
Depuis 2014: Aston Martin DB7 Vantage V12, 62000 km
Je roule aussi toujours en V6 ES9... avec mes 2 coupés 406, tous deux Louxor Pack, GPL, BMC, Supersprint, 120000 km et 205000 km, avec toujours autant de plaisir!
Mes ex-Peugeot :
2009-2010 : coupé 406 V6 GPL Thallium cuir abricot
2001-2009 : deux Peugeot 605 ph2 rouge vulcain nacré : 2.5 TD puis SV3 V6 GPL
Webmestre des forums 605 et GPL


Haut
 Profil  
 
 Sujet du message: Re: Coupure moteur intempestive sur V6 PRV 12s
MessagePostĂ©: Mer 09 DĂ©c 2009, 12:31:43 
Hors ligne
Nouveau
Nouveau
Avatar de l’utilisateur

Inscription: Mar 07 Oct 2008, 23:00:00
Messages: 24
Localisation: BERGERAC
Roule en: 605 PRV ph2
Merci Alc pour ta réponse.

@Franck Le faisceau a été changé aussi parmi les pièces que j'ai mentionné plus haut (il était plus que poreux :smile: ). J'ai oublié de le mettre dans la liste. J'ai tellement chagé de pièces que j'en oublie :mrgreen:

Je viens de commander le module (40 euros chez un motoriste avec une garantie), d'après le fournisseur il part aujourd'hui. Au pire j'aurais ca samedi et je ne manquerai pas de venir vous tenir au courant.
Je croise les doigts car là j'arrive à saturation (tant mentalement que financièrement) avec cette voiture que j'aime bien au demeurant.

_________________
François - V6 PRV 12s B.V.A. de 1996 -SV Bleue de Rhodes - 318000 kms au compteur


Haut
 Profil  
 
 Sujet du message: Re: Coupure moteur intempestive sur V6 PRV 12s
MessagePostĂ©: Mer 09 DĂ©c 2009, 12:45:24 
Hors ligne
Administrateur
Administrateur
Avatar de l’utilisateur

Inscription: Dim 25 Fév 2007, 0:00:00
Messages: 5800
Localisation: Ardèche (07)
Roule en: Autre
Comme je te comprends :sad: (ma 605 aussi mériterait que je m'en occupe, mais pour ce que je m'en sers en ce moment...)

ça va, pas trop cher le module... en fait je ne sais pas combien il coûte chez Peugeot ? (certainement une fortune comme d'hab')

Tu peux nous dire chez quel motoriste tu as pu l'acheter ? ça peut intéresser quelqu'un ici un jour ou l'autre ! (moi peut-être, qui sait :sad: :lol: )

On te dit "merde" pour la suite :dents:

_________________
Depuis 2014: Aston Martin DB7 Vantage V12, 62000 km
Je roule aussi toujours en V6 ES9... avec mes 2 coupés 406, tous deux Louxor Pack, GPL, BMC, Supersprint, 120000 km et 205000 km, avec toujours autant de plaisir!
Mes ex-Peugeot :
2009-2010 : coupé 406 V6 GPL Thallium cuir abricot
2001-2009 : deux Peugeot 605 ph2 rouge vulcain nacré : 2.5 TD puis SV3 V6 GPL
Webmestre des forums 605 et GPL


Haut
 Profil  
 
 Sujet du message: Re: Coupure moteur intempestive sur V6 PRV 12s
MessagePostĂ©: Mer 09 DĂ©c 2009, 14:11:29 
Hors ligne
Nouveau
Nouveau
Avatar de l’utilisateur

Inscription: Mar 07 Oct 2008, 23:00:00
Messages: 24
Localisation: BERGERAC
Roule en: 605 PRV ph2
Si mes souvenirs sont bons lorsque je les avait appelé il y a deux mois, le module était aux alentours de 127 euros (Impossible à avoir chez Oscaro en Bosch) et le capteur 77 euros (31.57€ chez Oscaro).

Le motoriste cest :

MOTEURS BABIN
Julien Babin
Tél : 06 03 99 98 24
Fax : 05 49 23 49 65
Mails : Moteursbabin@aol.com - Julienbabin5@aol.com

Il se trouve à Châtellerault. Je vous donnerais l'adresse exacte dès que je l'aurais.

_________________
François - V6 PRV 12s B.V.A. de 1996 -SV Bleue de Rhodes - 318000 kms au compteur


Haut
 Profil  
 
 Sujet du message: Re: Coupure moteur intempestive sur V6 PRV 12s
MessagePostĂ©: Mer 09 DĂ©c 2009, 14:44:09 
Hors ligne
Administrateur
Administrateur
Avatar de l’utilisateur

Inscription: Dim 25 Fév 2007, 0:00:00
Messages: 5800
Localisation: Ardèche (07)
Roule en: Autre
ok merci ! et puis chez Oscaro, compatible ou pas, leur module Valeo coûte tout de même 92,88 € TTC :dents:

pour l'adresse exacte : http://www.annuaire.com/societe/moteurs ... 481471977/
Moteurs Babin
Rue Albert Einstein
Zac du Sanital - le Technoforu
86100 CHATELLERAULT

_________________
Depuis 2014: Aston Martin DB7 Vantage V12, 62000 km
Je roule aussi toujours en V6 ES9... avec mes 2 coupés 406, tous deux Louxor Pack, GPL, BMC, Supersprint, 120000 km et 205000 km, avec toujours autant de plaisir!
Mes ex-Peugeot :
2009-2010 : coupé 406 V6 GPL Thallium cuir abricot
2001-2009 : deux Peugeot 605 ph2 rouge vulcain nacré : 2.5 TD puis SV3 V6 GPL
Webmestre des forums 605 et GPL


Haut
 Profil  
 
 Sujet du message: Re: Coupure moteur intempestive sur V6 PRV 12s
MessagePostĂ©: Ven 11 DĂ©c 2009, 16:54:25 
Hors ligne
Nouveau
Nouveau
Avatar de l’utilisateur

Inscription: Mar 07 Oct 2008, 23:00:00
Messages: 24
Localisation: BERGERAC
Roule en: 605 PRV ph2
Bonjour Ă  tous,

Pour du rapide c'est du rapide. J'ai reçu mon module par le courrier d'hier jeudi (commandé mercredi). Ne l'attendant pas si vite je n'ai vérifier ma boite qu'hier soir .
Ce matin j'ai donc monté le module, après une petite peur. En effet sept broches sur celui la aussi alors que le mien n'en avait que 6.
Mais bon pas de problème, il se monte, elle démarre. Après un premier essai en ville ce matin tout à l'air de fonctionner correctement. Elle démarre au quart de tour (enfin autant qu'on peut démarrer au quart de tour sur v6 :wink: ), elle n'a pas calé même à chaud.
Je vais donc continuer mes tests ce week end, mais je pense que ce problème devrait être résolu. :-D
Je vous confirmerais ça très vite.

Ce qui me chagrine c'est que c'est la première pièce que j'avais diagnostiquer au tout début. C'est d'ailleurs la première que j'avais commandé chez Oscaro, mais qui ne correspondait pas. Pas assez confiance en moi sans doute.
Enfin, tout est neuf au niveau de l'allumage maintenant :mrgreen:

Merci à vous tous ici qui m'avez bien aidé.

P.S. : J'ai un module VALEO 245536 tout neuf Ă  vendre :loll:

_________________
François - V6 PRV 12s B.V.A. de 1996 -SV Bleue de Rhodes - 318000 kms au compteur


Haut
 Profil  
 
 Sujet du message: Re: Coupure moteur intempestive sur V6 PRV 12s
MessagePostĂ©: Ven 11 DĂ©c 2009, 16:58:48 
Hors ligne
Passionné
Passionné
Avatar de l’utilisateur

Inscription: Sam 03 Mar 2007, 0:00:00
Messages: 14942
Espérant que ce soit pour toi résolu une bonne fois pour toute, et grâce au forum :-D au moindre coût, mis à part celui des pièces.


Haut
 Profil  
 
 Sujet du message: Re: Coupure moteur intempestive sur V6 PRV 12s
MessagePostĂ©: Mar 15 DĂ©c 2009, 18:41:05 
Hors ligne
Nouveau
Nouveau
Avatar de l’utilisateur

Inscription: Mar 07 Oct 2008, 23:00:00
Messages: 24
Localisation: BERGERAC
Roule en: 605 PRV ph2
Bonjour Ă  tous,

Je n'ai pas pu faire les tests que je voulais, le froid n'aidant pas. Mais une chose est sure, tous les petits trajets que j'ai pu faire sur ces trois derniers jours me font dire que ce problème est enfin résolu.
En 3 jours elle n'a pas calé, je la trouve même plus vive qu'avant. :dance:
Vraiment un grand merci :-D à tous les participants de ce forum qui m'ont permis de résoudre ce soucis et de retrouver avec plaisr le doux confort de cette voiture. :bravo:

J'ai deux petits soucis qui apparaissent mais qui ne m'empêche pas de rouler. Juste quelque chose désagréable :
- Une vibration sous la voiture comme si le pot d'échapement touchait la caisse de temps en temps
- L'impression que le boite de vitesse autos est moins douce qu'avant. Mais ca n'est peut ĂŞtre qu'une impression.

_________________
François - V6 PRV 12s B.V.A. de 1996 -SV Bleue de Rhodes - 318000 kms au compteur


Haut
 Profil  
 
 Sujet du message: Re: Coupure moteur intempestive sur V6 PRV 12s
MessagePostĂ©: Mar 15 DĂ©c 2009, 19:14:13 
Hors ligne
Administrateur
Administrateur
Avatar de l’utilisateur

Inscription: Dim 25 Fév 2007, 0:00:00
Messages: 5800
Localisation: Ardèche (07)
Roule en: Autre
Francois24 a écrit:
J'ai deux petits soucis qui apparaissent mais qui ne m'empêche pas de rouler. Juste quelque chose désagréable :
- Une vibration sous la voiture comme si le pot d'échapement touchait la caisse de temps en temps
- L'impression que le boite de vitesse autos est moins douce qu'avant. Mais ca n'est peut ĂŞtre qu'une impression.


Fais un nouveau topic pour ces questions qui n'ont plus rien à voir, et précise de quand date la dernière vidange de ta BVA :wink:

Très bien pour le reste ! :dents:

_________________
Depuis 2014: Aston Martin DB7 Vantage V12, 62000 km
Je roule aussi toujours en V6 ES9... avec mes 2 coupés 406, tous deux Louxor Pack, GPL, BMC, Supersprint, 120000 km et 205000 km, avec toujours autant de plaisir!
Mes ex-Peugeot :
2009-2010 : coupé 406 V6 GPL Thallium cuir abricot
2001-2009 : deux Peugeot 605 ph2 rouge vulcain nacré : 2.5 TD puis SV3 V6 GPL
Webmestre des forums 605 et GPL


Haut
 Profil  
 
 Sujet du message: Re: Coupure moteur intempestive sur V6 PRV 12s
MessagePostĂ©: Mar 15 DĂ©c 2009, 19:23:56 
Hors ligne
Passionné
Passionné
Avatar de l’utilisateur

Inscription: Sam 03 Mar 2007, 0:00:00
Messages: 14942
Pour la BVA ce TUTO
http://peugeot605.forumeurs.fr/entretien-courant-boite-vitesses-automatique-t1453.html


Haut
 Profil  
 
 Sujet du message: Re: [RESOLU] Coupure moteur intempestive sur V6 PRV 12s
MessagePostĂ©: Mer 16 DĂ©c 2009, 1:03:18 
Hors ligne
Nouveau
Nouveau
Avatar de l’utilisateur

Inscription: Mar 07 Oct 2008, 23:00:00
Messages: 24
Localisation: BERGERAC
Roule en: 605 PRV ph2
Ok je vais sur le lien que tu m'a donné.
J'ai marqué résolu sur le titre du Topic, puisque pour ce sujet c'est réglé.

Encore une fois Merci Ă  tous.

_________________
François - V6 PRV 12s B.V.A. de 1996 -SV Bleue de Rhodes - 318000 kms au compteur


Haut
 Profil  
 
Afficher les messages postĂ©s depuis:  Trier par  
Poster un nouveau sujet RĂ©pondre au sujet  [ 40 messages ]  Aller Ă  la page PrĂ©cĂ©dente  1, 2

Heures au format UTC + 1 heure


Qui est en ligne

Utilisateurs parcourant ce forum: Aucun utilisateur enregistré et 4 invités


Vous ne pouvez pas poster de nouveaux sujets
Vous ne pouvez pas répondre aux sujets
Vous ne pouvez pas éditer vos messages
Vous ne pouvez pas supprimer vos messages
Vous ne pouvez pas joindre des fichiers

Rechercher:
Aller Ă :  


Tous les messages postés sur ce forum sont sous la responsabilité des inscrits qui les ont écrits,
non du webmaster-administrateur ou des modérateurs-organisateurs, à l'exception de leurs propres messages.

Réalisé par : Franck - Copie même partielle interdite ©

Powered by phpBB © 2023