Forum  M’enregistrer
* *

Nous sommes le Mer 12 Nov 2025, 19:18:36

Heures au format UTC + 1 heure




Poster un nouveau sujet RĂ©pondre au sujet  [ 8 messages ] 
Auteur Message
 Sujet du message: fusible pour les phares?
MessagePostĂ©: Sam 20 FĂ©v 2010, 18:38:05 
Hors ligne
Nouveau
Nouveau
Avatar de l’utilisateur

Inscription: Mer 08 AoĂ» 2007, 23:00:00
Messages: 56
Localisation: 18000
Roule en: 605 TD 2.5l
voila mon probleme: mes codes de phares coté droit ne fonctionne plus...
or je n'ai pas vu sur la platine des fusibles ou se situent le(s) fusible(s)...
sinon quelqu'un aurait le schéma electrique ou aurait rencontré le probleme?

_________________
605 svdt 2.5 96 252000 grise tt options


Haut
 Profil  
 

 Annonces du forum Peugeot 605

 Sujet du message: Re: fusible pour les phares?
MessagePostĂ©: Sam 20 FĂ©v 2010, 19:10:37 
Hors ligne
Spécialiste
Spécialiste
Avatar de l’utilisateur

Inscription: Mar 12 AoĂ» 2008, 23:00:00
Messages: 2075
Roule en: Autre
Dans le manuel, pas de fusible indiqué pour les feux avant :roll:

Si ton feux ne marche pas, soit ampoule out soit mauvais contact,
défaut que j'ai eu sur ma SRD et sur l'ES9 sur le coté droit aussi.


Haut
 Profil  
 
 Sujet du message: Re: fusible pour les phares?
MessagePostĂ©: Sam 20 FĂ©v 2010, 19:36:17 
Hors ligne
Passionné
Passionné
Avatar de l’utilisateur

Inscription: Sam 03 Mar 2007, 0:00:00
Messages: 14942
En effet, pas de fusibles pour les phares, un peu bizarre :shock:

Souvent c'est un problème de masse, et justement du côté des phares, il faut que tu cherches dans ce secteur.

Une question bête aussi, tu es sûr que tes ampoules sont en bon état ?
Et attention, il y a 2 ampoules, 1 pour les feux de croisement, et 1 pour les feux de route (cela me rappelle quelqu'un dans un même topic :mdrr: il va bien se reconnaître :dents: )


Haut
 Profil  
 
 Sujet du message: Re: fusible pour les phares?
MessagePostĂ©: Sam 20 FĂ©v 2010, 19:52:55 
Hors ligne
Nouveau
Nouveau
Avatar de l’utilisateur

Inscription: Mer 08 AoĂ» 2007, 23:00:00
Messages: 56
Localisation: 18000
Roule en: 605 TD 2.5l
j'ai changé l'ampoule c'est la premiere chose que j'ai faite ...
sur le connecteur du phare arrivent 4 fils...a quoi correspondent-ils? (pour faire des test)...y a t-il 1 ou 2 relais de commande des phares (situé juste au dessus du radiateur)bref qui aurait u petit schéma de principe? merci

_________________
605 svdt 2.5 96 252000 grise tt options


Haut
 Profil  
 
 Sujet du message: Re: fusible pour les phares?
MessagePostĂ©: Sam 20 FĂ©v 2010, 19:55:36 
Hors ligne
Passionné
Passionné
Avatar de l’utilisateur

Inscription: Sam 03 Mar 2007, 0:00:00
Messages: 14942
Des spécialistes des schémas vont te mettre ça en ligne


Haut
 Profil  
 
 Sujet du message: Re: fusible pour les phares?
MessagePostĂ©: Sam 20 FĂ©v 2010, 20:27:03 
Hors ligne
Régulier
Régulier
Avatar de l’utilisateur

Inscription: Dim 05 Avr 2009, 21:43:53
Messages: 924
Localisation: Alpes Maritimes
Roule en: 605 TCT 2l
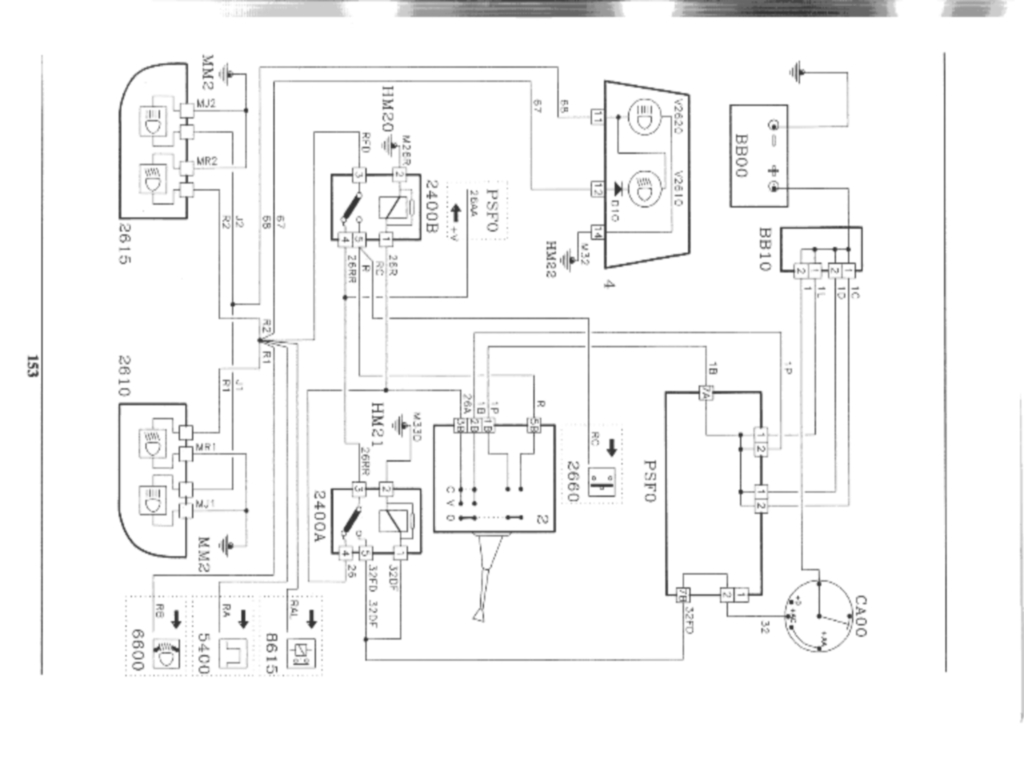
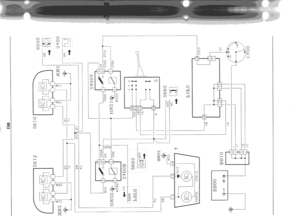
J'ai trouvé ces deux schémas, qui je l'espère, t'aideront.


Eclairage de 90879239 Ă   90885086.jpg
Eclairage de 90879239 Ă  90885086.jpg [ 171.72 Kio | Vu 6635 fois ]

Ecl de 90885087.jpg
Ecl de 90885087.jpg [ 152.94 Kio | Vu 6635 fois ]


_________________
Joël
Actuelles :407 Phase II-2,2 - 09/2008 37 000 kms --- 106 Color Line 11/2002 49 000kms
Avant => 605 Executive 2L.Turbo Essence 150CV-6BRGXE-BVM -Gris Chateau- 09/ 1999- 83 500 kms
605 SLI - Phase 1 / 505 GTI / 504 TI / 304 S Berline / 304 S Coupé / 204 Coupé / Renault 8
Haut
 Profil  
 
 Sujet du message: Re: fusible pour les phares?
MessagePostĂ©: Sam 20 FĂ©v 2010, 21:05:04 
Hors ligne
Nouveau
Nouveau
Avatar de l’utilisateur

Inscription: Mer 08 AoĂ» 2007, 23:00:00
Messages: 56
Localisation: 18000
Roule en: 605 TD 2.5l
merci pour le schéma :-D
je verrai ca demain...si les longues portée ne fonctionne pas, je pense que ce sera la masse du feux
si la longue portée marche, il faudra que je trouve le point R1-R2, une jonction? mais ou se trouve t-elle dans la voiture? au niveau du boitier au deuus du radiateur serait le + logique?

_________________
605 svdt 2.5 96 252000 grise tt options


Haut
 Profil  
 
 Sujet du message: Re: fusible pour les phares?
MessagePostĂ©: Dim 04 Nov 2018, 11:39:40 
Hors ligne
Nouveau
Nouveau
Avatar de l’utilisateur

Inscription: Jeu 23 AoĂ» 2018, 17:44:05
Messages: 24
Roule en: 605 TD 2.1l
salut a tous ici gariyan: probleme de chauffage ne fonctionne pas la trape de mixage fonctionne ventilation haute ventilation base ventilation centre degivrage tout fontionne mais j ai que de lair froid ,pas chaud je pense que la trape du chaud est bloque ont me parle sur le forum du micro moteur hs j ai vue ou il se trouvais mais je n arrive pas a le deloger du bloc chauffage si une personne competente peut me dire comment faire merci au forum

gariyan

-- Edit du Sam 27 Oct 2018, 14:55:19 --

rebonjour : ici gariyan on me parle d un relais jaune ,pas vue mais j ai vue un relais vert en haut cote colonne du volant a cote du bloc moteur chauffage ya t il un lien avec le chauffage je presise que la platine de commande et electronique merci a vous tous
gariyan

-- Edit du Jeu 01 Nov 2018, 12:47:47 --



-- Edit du Dim 04 Nov 2018, 12:39:40 --

BONJOUR au forum :merci pour le shema electricque mais ne pouvant pas attendre je me suis dit que d apres les tutos quil y avait un probleme de masse , alors deux longueur de fil 4 cosses faston un fil pour le code et un pour les pleins phares et tout fonctionne meme le glignotant ca va rester comme ca parce que j ai nettoyer les cosses de masses au niveau des ailes avant et ca na rien donner maintenant il me reste a regler le probleme de chauffage qui fait que du froid j ai verifier les fusibles rien la trape d air froid fonctionne pare contre le relais jaune a cote du vert introuvable je vais la faire reparer au garage mais sa va me co

uter un oeil comme jai travaller dans les garage en temps que peintre carrosserie je connais la musique
en tout cas merci pour les infos
salutation au forum gariyan.

_________________
Peugeot 605 SVDT 11.01.91 ann??e
2L/100 turbo


Haut
 Profil  
 
Afficher les messages postĂ©s depuis:  Trier par  
Poster un nouveau sujet RĂ©pondre au sujet  [ 8 messages ] 

Heures au format UTC + 1 heure


Qui est en ligne

Utilisateurs parcourant ce forum: Aucun utilisateur enregistré et 0 invités


Vous ne pouvez pas poster de nouveaux sujets
Vous ne pouvez pas répondre aux sujets
Vous ne pouvez pas éditer vos messages
Vous ne pouvez pas supprimer vos messages
Vous ne pouvez pas joindre des fichiers

Rechercher:
Aller Ă :  


Tous les messages postés sur ce forum sont sous la responsabilité des inscrits qui les ont écrits,
non du webmaster-administrateur ou des modérateurs-organisateurs, à l'exception de leurs propres messages.

Réalisé par : Franck - Copie même partielle interdite ©

Powered by phpBB © 2023